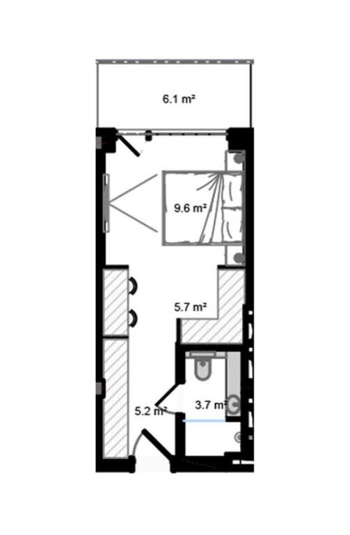
Satılır 1 otaqlı yeni tikili, 37.5 m², Nardaran
- 1 - Otaq sayı
- 5/18 - Mərtəbə
- 37.5 m2 - Sahə
Daha geniş seçim
Qısalt
| Çıxarış (kupça) | - нет |
Daha geniş seçim
Qısalt
Sea Breeze Park Lane kompleksində mənzil satılır
Ümumi sahə: 37,5 m², 5-ci mərtəbə.
Mənzilin pəncərələrindən hovuza baxış açılır.
Kompleks — biznes sinifli yaşayış binasıdır: mühafizə olunan ərazi, yeraltı dayanacaq və inkişaf etmiş infrastruktur.
Yaşayış və ya investisiya üçün əla seçimdir!
Ümumi sahə: 37,5 m², 5-ci mərtəbə.
Mənzilin pəncərələrindən hovuza baxış açılır.
Kompleks — biznes sinifli yaşayış binasıdır: mühafizə olunan ərazi, yeraltı dayanacaq və inkişaf etmiş infrastruktur.
Yaşayış və ya investisiya üçün əla seçimdir!
Vasitəçi:
Eldar
Nömrəni göstər +994 .. ... .. ..
+994102397609
Satıcıya elanı homdom.az saytında tapdığınızı bildirin
İrəli çək
Premium
Ən çox axtarılanlar
Oxşar elanlar